_DSC5235.JPG

Fullum Studios

FULLUM STUDIOS

Fullum films also owns it’s own production studio located in the heart of Montreal. Since it’s opening, it has been the home of over 50 film and TV productions with a combined value of $250 million.

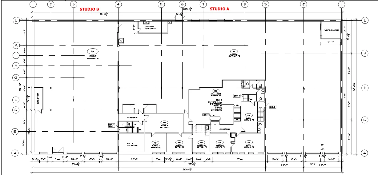
Fullum Studios consist of 4 stages ranging from 2000sq ft (186 m2) to 34 000 sq ft. (3,159 m2), with a total space of 43 000sq ft (3,995 m2), coupled with 4 000sq ft (372m2) of office space and art departments. Surrounded with cool cafes and restaurants, shops and entertainment venues, the studios are right in the pulse of the city.

Fullum Studios are available for local and foreign productions. For further information contact us at 1 (800) 950-2029 or info@fullumfilms.com

Studios are located at 5635 rue Fullum, Montréal, QC, H2G 2H6 

 

 

PHOTO GALLERY

TOTAL STUDIO AREA: 43,000 ft2




LOCATION